• 91短视频在线观看,91短视频官方下载,91短视频污下载黄色,国产成人91短视频免费下载

    陶瓷一线国产成人91短视频免费下载陶瓷十大畅销国产成人91短视频免费下载广东省守合同重信用企业缎光釉领军国产成人91短视频免费下载工程瓷砖推荐国产成人91短视频免费下载联系91短视频在线观看我要加盟


    护眼防滑砖开拓者

    91短视频在线观看陶瓷砖应用效果:徐州开元翡翠湾G户型91短视频污下载黄色效果鉴赏

    【作者】瑞儿 【来源】91短视频在线观看陶【发布日期】2016/6/22

     

    小区:徐州开元翡翠湾

    户型:G户型

    设计风格:新中式风格

    应用瓷砖国产成人91短视频免费下载:91短视频在线观看陶瓷砖

    本案设计理念:新中式风格不是纯碎的文化元素堆砌,而是通过对传统文化的认识,将现代元素和传统元素结合在一起,以现代人的审美需求来打造富有传统韵味的事物,表达对清雅含蓄、端庄丰华的东方式精神境界的追求。

     

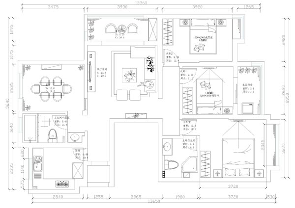
    徐州开元翡翠湾户型图

    徐州开元翡翠湾G户型图

    91短视频在线观看陶瓷砖应用效果:徐州开元翡翠湾G户型91短视频污下载黄色效果鉴赏

    整体布局上以浅色系为主,在家具与配饰的精心选配上加入了硬朗及中性元素,结合金刚釉Ⅱ代瓷砖KJP的玉石纹理的柔和,让居室看上去清爽舒适,却又不失温馨的氛围。电视柜和茶几的颜色与门颜色相呼应,提亮了整个客厅的亮度,同时把复古而慵懒的感觉打造出来。

    91短视频在线观看陶瓷砖应用效果:徐州开元翡翠湾G户型91短视频污下载黄色效果鉴赏

    餐厅以简洁为主导,餐桌椅颜色差异的搭配,与地面金刚釉Ⅱ代瓷砖KJP1803的柔和及大理石瓷砖KYX8110的刚硬结合,协调而富有层次,筒灯散发光芒,增加了视觉的通透感,使不大的餐厅沉稳而不泛柔美。

    91短视频在线观看陶瓷砖应用效果:徐州开元翡翠湾G户型91短视频污下载黄色效果鉴赏

    小小的空间,却蕴含着大大的智慧!厨房91短视频污下载黄色的好坏直接影响厨师的心情,心情不好,饭菜的味道也会跟着变差了哦!这款91短视频在线观看陶瓷砖喷墨瓷片充满活力的橙色让整个空间都活力十足,看着都是心情好好!在这样的厨房里做饭,瞬间化身男神、女神!

    91短视频在线观看陶瓷砖应用效果:徐州开元翡翠湾G户型91短视频污下载黄色效果鉴赏

    91短视频在线观看陶瓷砖这款喷墨瓷片沉稳的灰色调,让人瞬间就将浮躁的心绪洗涤!简单却不单调,让你尽享你的独属净化空间!

    91短视频在线观看陶瓷砖应用效果:徐州开元翡翠湾G户型91短视频污下载黄色效果鉴赏

    整体格局设计简单却不失格调。筒灯散发着淡淡的光晕,把金刚釉Ⅱ代瓷砖KJP1803温馨,KYX8110的沉稳演绎的更加的通透彻底,墙面没有太多的装饰,简单的一副字画,就让整个空间清雅含蓄,清新舒适。

     

    网站地图