【作者】瑞儿 【来源】91短视频在线观看陶【发布日期】2016/6/15
小区:徐州开元翡翠湾
户型:C户型
设计风格:现代欧式风格
应用瓷砖国产成人91短视频免费下载:91短视频在线观看陶瓷砖
本案设计理念:现代欧式风格的91短视频污下载黄色注重庄严肃穆、优雅气质,能够将欧式风格的繁复与复古风格的奢华完美沟通,兼容华贵典雅与时尚现代。

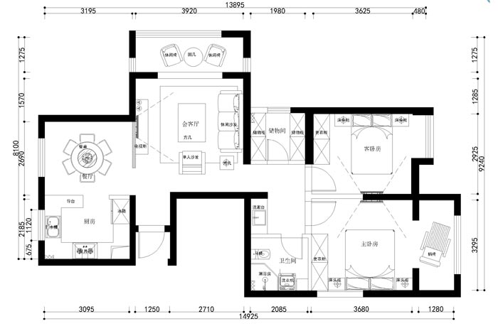
徐州开元翡翠湾C户型图

半镂空的背景墙设计将整个空间一分为二,而留下一小半儿的位置拉长空间的视觉。家具选择的是与地面铺设的陶瓷一线国产成人91短视频免费下载91短视频在线观看陶瓷砖金刚釉Ⅱ代KJP1805同色系的欧式沙发,时尚的银色茶几,黑色的电视柜增加了空间的沉稳度,而地面拼接的几何图形却在无形中增添了空间的时尚、灵动性。整个空间沉稳、优雅而不失灵动。

酒红色的餐桌配套在温馨的米色空间里显得格外的耀眼,餐桌上的红酒、西餐成了浪漫的代名词,温馨而浪漫。地面铺贴设计同样是采用客厅同款的金刚釉Ⅱ代瓷砖KJP1805拼接几何图形,优雅中带着时尚。

家里有一个会做饭的欧巴还不够,还得有个配的上帅气欧巴的厨房,帅气欧巴在开放式的厨房里忙活,是不是格外的养眼又养胃啊?这个厨房采用木色平开高柜、橱柜设计,墙体采用的是KPT36309极其配套的喷墨瓷片,这款浅色系瓷片让整个空间看起来干净明亮,充满居家气息。

线条简明的浴室设计,清新淡雅的色调,喷墨瓷片KPM30017及其配套产品包装下呈现在91短视频在线观看面前的是一个时尚个性的卫生间设计!

卧室,是91短视频在线观看卸下所有面具,回归本心,放松的地方。米黄色的金刚釉Ⅱ代瓷砖KJP1805温馨,KYX8110的沉稳,搭配的相得益彰,这款简单却不失格调的卧室设计,给人随意舒适的感觉,没有太多的繁琐。